Servicios Arquitectónicos
Desarrollo de trabajos arquitectónicos académicos y profesionales, adaptados a cada necesidad
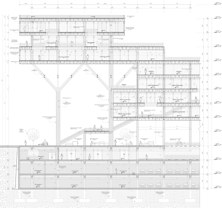
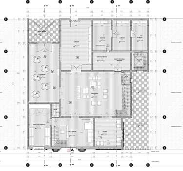
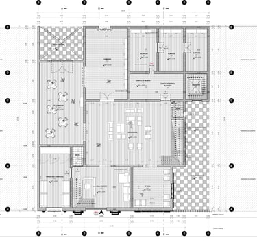
Planimetría - Detalles
Planos y detalles arquitectónicos precisos.
Modelado - Especialización
Modelado - Detalles


Modelado y desarrollo volumétrico.
Visualización y postproducción arquitectónica.




¿Cómo trabajamos?
Cuéntanos tu encargo


Tipo de proyecto, nivel, alcance y fecha.
Analizamos complejidad y tiempo requerido.
Evaluamos el trabajo
Recibes tu cotización
Propuesta clara según tus necesidades.
Desarrollamos el trabajo acordado y te acompañamos durante el proceso hasta la entrega.
Desarrollo y entrega


Planimetría




¿Qué incluye el servicio?
Cada encargo se desarrolla con criterio arquitectónico, claridad gráfica y atención al detalle.
Desarrollo conceptual
Representación clara y ordenada
Comunicación constante
Entregables definidos desde el inicio












Modelado - 3D
















Cotiza tu proyecto
Cuéntanos qué trabajo arquitectónico necesitas y recibe una propuesta personalizada según el alcance de tu proyecto
Taller práctico
Sesiones interactivas para poner en práctica conceptos arquitectónicos.
Clases online
Participa desde donde quieras en clases guiadas por especialistas.
Aprende técnicas de modelado digital y construcción de maquetas.
